V1 - A partir de: 97.007 € (IVA Incluído)
-

Modelo Standard
Com pintura anticorrosiva da fachada.
-

Modelo Premium
Com revestimento de fachada ventilada em réguas de alumínio.
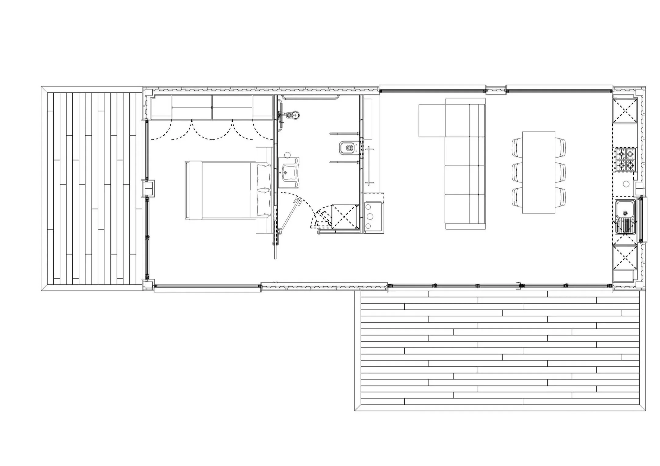
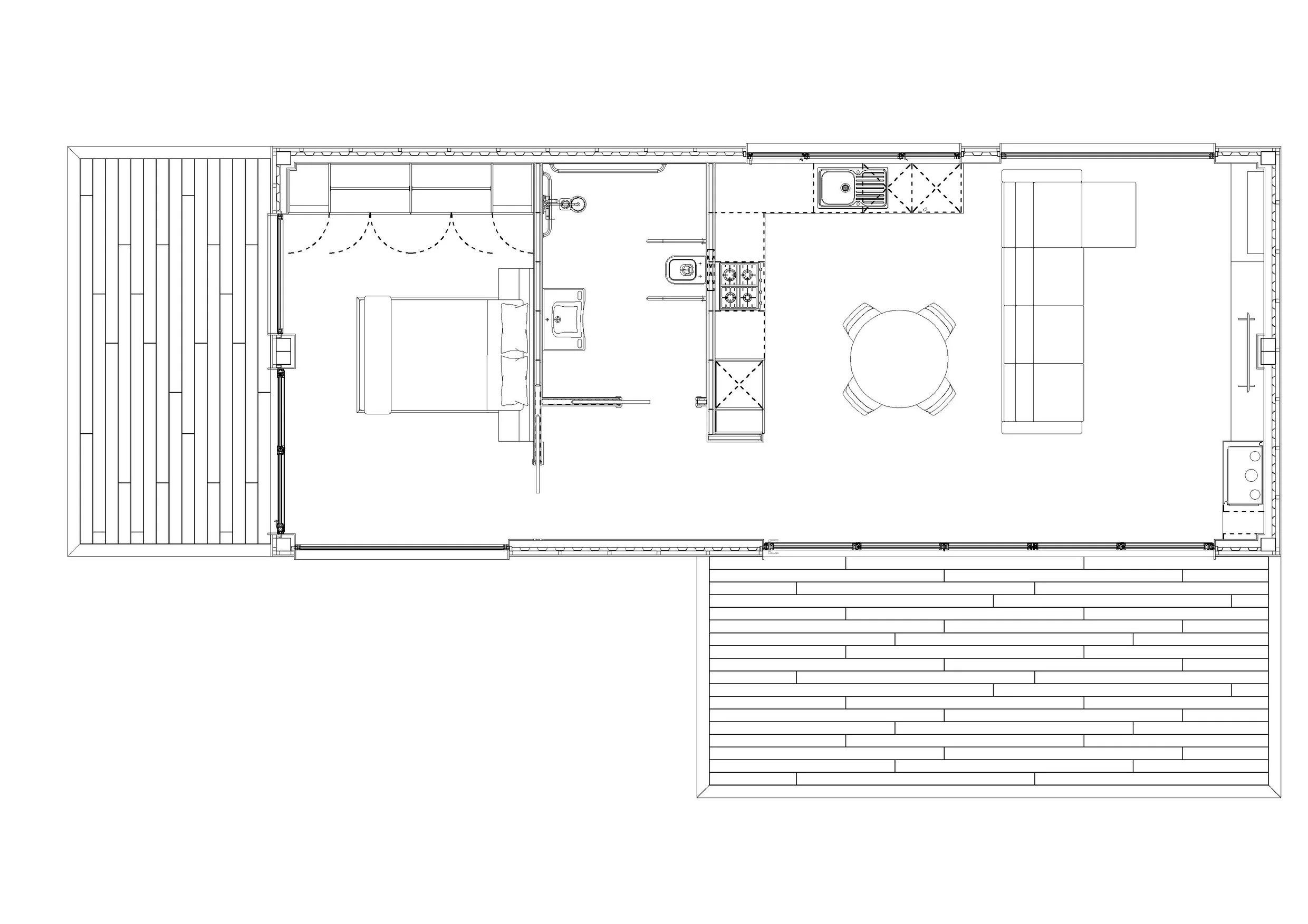
A Modubox oferece duas opções inovadoras de moradias V1, projetadas para combinar funcionalidade, conforto e design moderno em espaços compactos e eficientes. Ambas as versões possuem uma área total de 61,55 m², garantindo amplo espaço para uma vida prática e sustentável, com materiais de alta qualidade e soluções modulares que facilitam a personalização e a montagem rápida.
A única diferença entre os dois modelos reside no layout da cozinha, permitindo que escolha a configuração que melhor se adapta ao seu estilo de vida. Ambas as opções são ideais para solteiros, casais ou como residências secundárias. Entre em contato para mais detalhes!
Especificações Gerais - T1
-
Envolvente composta (do interior para o exterior):
- Dupla placa em pladur hidrofugante;
- Isolamento térmico em poliestireno extrudido (XPS) de 6cm;
- Placa OSB de 12mm;
- Painel de fachada metálica, do contentor existente;
- Caixa de ar ventilada;
-
Dupla placa de pladur hidrofugante, com paineis OSB de 18mm em ambas as faces.
Lã de rocha de 4cm de espessura.
-
Envolvente composta (do interior para o exterior):
- Pavimento Vinilico SPC Flutuante Carvalho Natural NewVinyl 6,5 mm;
- Placa OSB de 12mm;
- Isolamento térmico em poliestireno extrudido (XPS) de 4cm assente sobre o chão do contentor de 40 pés.
-
Envolvente composta (do interior para o exterior):
- Placa em pladur hidrofugante;
- Isolamento térmico em rolos de lã de rocha com 4cm, em contato com a caixa de ar;
- Painel de cobertura metálica, do contentor existente;
- Tela autoadesiva aplicada sobre o painel de cobertura metálica, do contentor existente;
- Poliuretano com 5cm de espessura média, sobre a tela autoadesiva;
- Painel sandwich de 5 ondas com 60mm de espessura, de revestimento final, formando pendentes e caixa de ar sob o painel.
-
Janelas/ Vãos envidraçados
Vãos em caixilharia PVC, Kommerling, com vidro duplo incolor 4 + 6mm e lâmina de ar de 16mm
Proteção solar das janelas/ Vãos envidraçados
Cortinas interiores opacas de cor clara.
Porta de entrada de sacada
Porta de entrada opaca em caixilharia PVC, Kommerling
Luminárias, sistemas de telecomunicações e Sistemas técnicos
Sistema Led;
Ar condicionado para aquecimento e arrefecimento ambiente;
Bomba de calor sanitária para águas quentes sanitárias;
Sistemas de telecomunicações ITED, conforme a legislação em vigor.
Cerâmico em paredes de casas de banho
Rodapé em aglomerado de fibras de madeira
Portas interiores de madeira (de abrir e de correr)
Plantas
V1 modelo 1
V1 modelo 2
Saiba Mais sobre estes modelos
Na Modubox, criamos moradias modernas e sustentáveis, construídas a partir de contentores marítimos, com todo o conforto e qualidade que merece.
Se pretende conhecer melhor as características, os acabamentos e todas as opções disponíveis, basta preencher o formulário que preparámos para si.
A nossa equipa terá todo o gosto em enviar-lhe todas as informações de que precisa para começar o seu projeto.